
Currievale
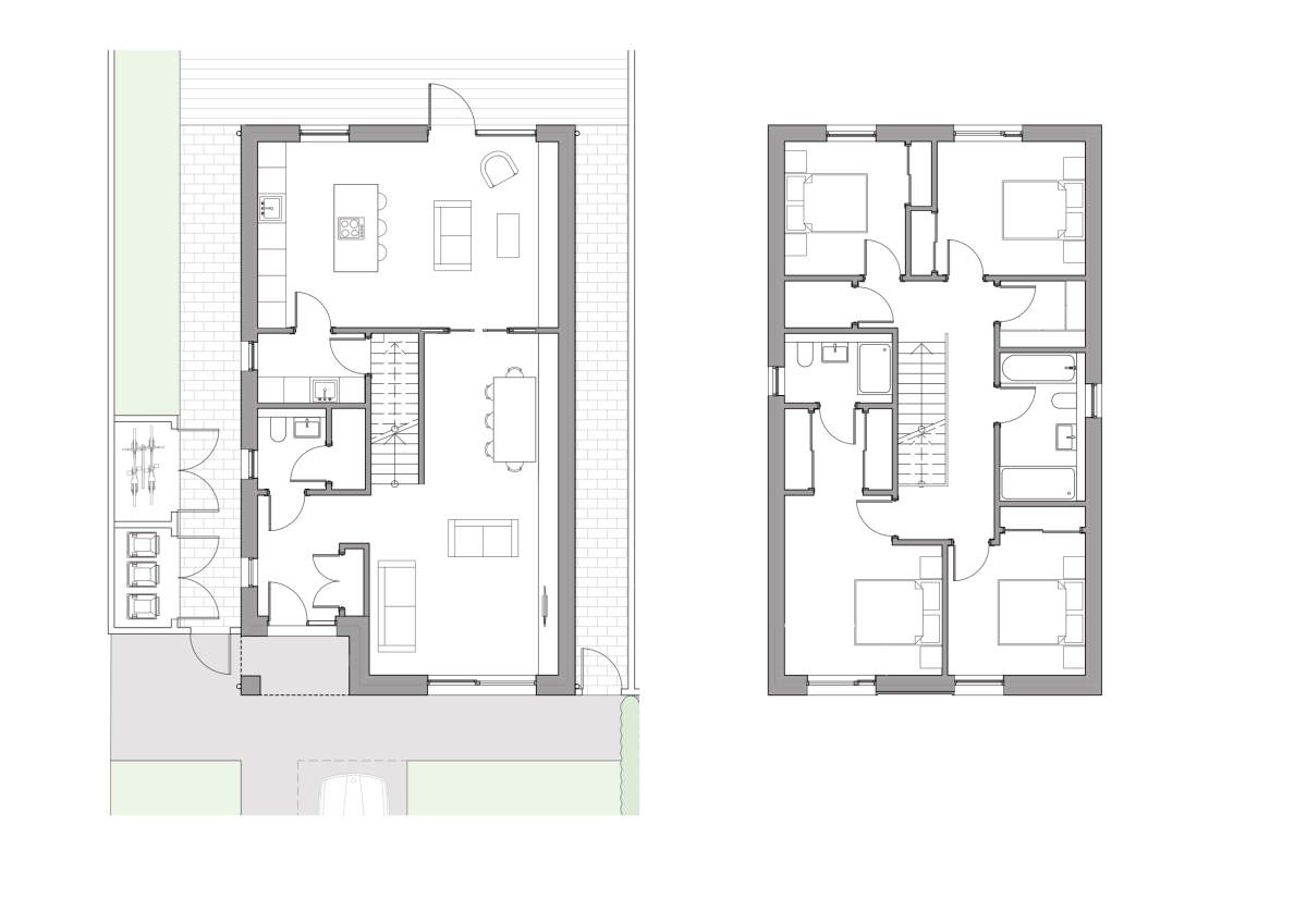
Working with Carlsson Properties Ltd, our project brief was to create a residential development that takes precedent from the existing street pattern and the character of the surrounding context, whilst delivering desirable and attractive three and four bedroom family homes within a community driven development.
In our approach to the site layout, we aimed to ensure a large majority of the existing trees and planting to the north, east and western edges of the site were retained and incorporated into the proposal to reinforce the local landscape character and retain ecological and biodiversity benefits. A new shared access road via Currievale Park provides efficient access to each dwelling and the area of development was carefully considered and subdivided to provide plots that are of a density which is in keeping with the existing context, ensuring the development will be a positive contribution to the existing streetscape.


The individual dwellings are sited in a linear manner, allowing primary elevations composed of traditional proportions to positively address the street. Variation in building positions and footprints help to create a diverse street scene and green spaces within the development will contribute to its attractiveness as a whole.
The proposed material palette is sympathetic to the surrounding context with muted facing brick proposed for the ground floor, contrasted with the sharp finish of the render above. Areas of timber cladding are used to articulate key moments in the elevations.

TEAM Insight
“We saw an opportunity to create an ensemble of new dwellings that respected the existing residential context of Currievale Park and retain the site’s valuable landscape character. We believe this development will be a positive contribution to the area and provide high-quality internal and external spaces for future residents to enjoy.“
Calum Ward







PROJECT TEAM
Planning Consultant: Ferguson Planning
Structural & Civil Engineer: Narro Associates
Landscape Architect: LUC
PROJECT details
Client: Carlsson Properties
Location: Currie, Edinburgh
Status: In progress
Sector: Residential